新築戸建
仲介手数料0円
相模原市中央区田名第143 新築戸建 全2棟 1号棟 ZEH水準省エネ住宅・制震ダンパー「SAFE365]・耐震等級3・耐風等級2・一次エネルギー等級6・カースペース並列2台可
- 価格
- 2,980万円
- 所在地
- 相模原市中央区田名
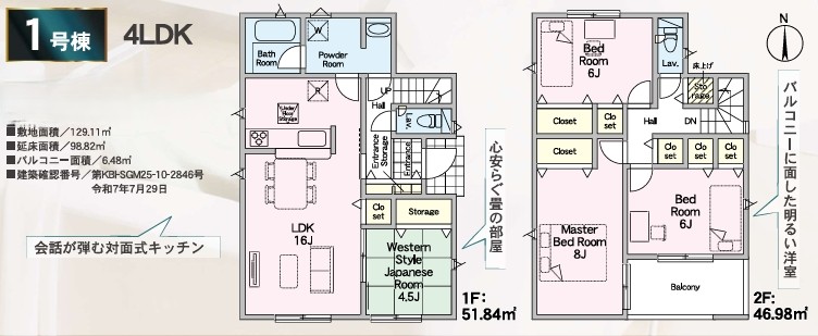
- 間取り
- 4LDK
- 土地面積
- 129.11㎡(39.06坪)
- 建物面積
- 98.82㎡(29.89坪)バルコニー6.48㎡(1.96坪)
- 交通
- JR相模線「原当麻」駅バス18分
「弁天入口」停歩3分
間取り図
住宅設備
- 都市ガス
- 公営水道
- 本下水
- TVモニター付きインターホン
- ルーフバルコニー
- ペアガラス
- システムキッチン
- カウンターキッチン
- ガスコンロ
- シャンプードレッサー
- 浴室乾燥機
- 1F・2Fトイレウォシュレット
- 24時間換気システム
- フラット35S対象
- 建物10年保証付き
- 人感センサー
物件詳細情報
- 物件番号
- 202511nh-s000054-01
- 情報公開日
- 2025/11/06
- 価格
- 2,980万円
- 建築年月
- 2025年11月
- 所在地
- 相模原市中央区田名
- 交通
- JR相模線「原当麻」駅バス18分
「弁天入口」停歩3分
- 間取り
- 4LDK
- 建物構造
- 木造2階建て
- 土地面積
- 129.11㎡(39.06坪)
- 建物面積
- 98.82㎡(29.89坪)バルコニー6.48㎡(1.96坪)
- 建ぺい率
- 60%
- 容積率
- 150%
- 現況
- 未完成
- 引渡日
- 相談
- 土地権利
- 所有権
- 地目
- 宅地
- 都市計画
- 市街化区域
- 用途地域
- 第一種中高層住居専用地域
- 建築確認番号
- 第KBI-SGM25-10-2846号
- 取引態様
- 媒介
- 設備
-
- 都市ガス
- 公営水道
- 本下水
- 接道状況
- 東 約5m公道
- 通学区域
- 田名小学校 約1217m
田名中学校 約1367m
- 周辺施設
- スーパーアルプス塩田店 約1467m
ウエルシア相模原田名店 約1662m
ローソンストア100相模原田名望地店 約356m
田名保育園 約800m
周辺地図
物件の詳細や見学(無料)などのお問い合わせは、
お問い合わせフォームまたはLINE、お電話にてご連絡ください。
- お電話での問合せ
-
042-707-1191
営業時間:平⽇ 10:00〜18:00
定休⽇:火曜日、⽔曜⽇、ゴールデンウィーク/夏季/年末年始


