中古戸建
仲介手数料0円
相模原市中央区田名 中古戸建 2025年5月リフォーム済み(外装塗装・水回り新規交換 他)・ビルトインガレージ
- 価格
- 1,690万円
- 所在地
- 相模原市中央区田名
- 間取り
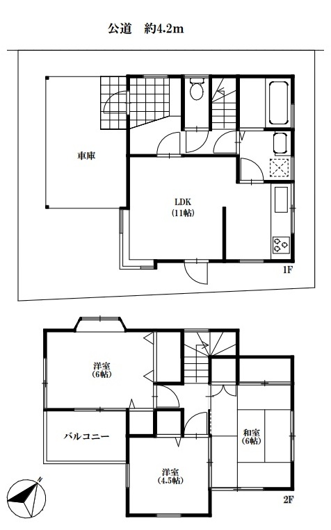
- 3LDK+ビルトインガレージ
- 土地面積
- 82.72㎡(25.02坪)
- 建物面積
- 72.87㎡(22.04坪) ※別途、ビルトイン車庫12.42㎡
- 交通
- 横浜線「橋本」駅バス25分
「工場入口」停歩10分
間取り図
住宅設備
- 公営水道
- 本下水
- TVモニター付きインターホン
- ルーフバルコニー
- システムキッチン
- 食洗機
- ガスコンロ
- シャンプードレッサー
- 浴室乾燥機
- ビルトイン車庫
- ワイドバルコニー
- 追い炊き機能
- 対面式キッチン
- ポーチ
- 畳コーナー
- パウダールーム
- 1Fトイレウォシュレット
物件詳細情報
- 物件番号
- 202511uh-s000020
- 情報公開日
- 2025/11/23
- 価格
- 1,690万円
- 建築年月
- 1994年7月
- 所在地
- 相模原市中央区田名
- 交通
- 横浜線「橋本」駅バス25分
「工場入口」停歩10分
- 間取り
- 3LDK+ビルトインガレージ
- 建物構造
- 木造2階建て
- 土地面積
- 82.72㎡(25.02坪)
- 建物面積
- 72.87㎡(22.04坪) ※別途、ビルトイン車庫12.42㎡
- 建ぺい率
- 60%
- 容積率
- 200%
- 現況
- 空家
- 引渡日
- 即日
- 土地権利
- 所有権
- 地目
- 宅地
- 都市計画
- 市街化区域
- 用途地域
- 工業地域
- 取引態様
- 媒介
- 設備
-
- LPガス
- 公営水道
- 本下水
- 接道状況
- 北西側 約4.2m公道
- 通学区域
- 田名北小学校 約800m
田名中学校 約1500m
- 周辺施設
- ファミリーマート相模原マルハン店 約650m
セブンイレブン相模原田名堀之内店 約1100m
ミニストップ 田名葛輪店 約1200m
ヨークフーズ 田名店 約1300m
クリエイトSD相模原田名清水原店 約850m
ドラッグセイムス 田名店 約1000m
ウエルシア相模原田名店 約1400m
ユニハードウェア相模原田名店 約1300m
中央区役所 田名まちづくりセンター 約1500m
相模原協同病院 約4400m
周辺地図
物件の詳細や見学(無料)などのお問い合わせは、
お問い合わせフォームまたはLINE、お電話にてご連絡ください。
- お電話での問合せ
-
042-707-1191
営業時間:平⽇ 10:00〜18:00
定休⽇:火曜日、⽔曜⽇、ゴールデンウィーク/夏季/年末年始












