中古マンション
仲介手数料0円
相模原市中古マンション アスティオン鹿沼公園 2025年5月リフォーム済(水回り新規交換 他・アフターサービス保証付)・ペット可・駐車場1台(無償)+駐輪場1台(無償)
- 価格
- 2,999万円
- 所在地
- 相模原市中央区鹿沼台1丁目(6階部分)
- 間取り
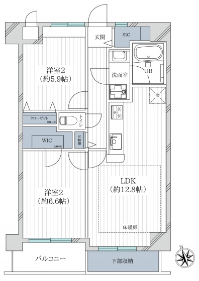
- 2LDK+WIC+SIC
- 建物面積
- 62.93㎡(19.04坪)バルコニー4.44㎡(1.34坪)
- 交通
- 横浜線「淵野辺」駅徒歩2分
間取り図
住宅設備
- 都市ガス
- 公営水道
- 本下水
- TVモニター付きインターホン
- シューズクローク
- 床暖房
- システムキッチン
- 食洗機
- ガスコンロ
- シャンプードレッサー
- 浴室乾燥機
- 24時間換気システム
- オートロック
- エレベーター
- 駐輪場
- 追い炊き機能
- 人感センサー
- ウォークインクローゼット
- 宅配ボックス
- 外壁タイル張り
- 駐車場有
- パウダールーム
- トイレウォシュレット
- エアコン
物件詳細情報
- 物件番号
- 202512ua-s000026
- 情報公開日
- 2025/12/06
- 価格
- 2,999万円
- 建築年月
- 2003年11月
- 所在地
- 相模原市中央区鹿沼台1丁目(6階部分)
- 交通
- 横浜線「淵野辺」駅徒歩2分
- 間取り
- 2LDK+WIC+SIC
- 建物構造
- 鉄筋コンクリート造陸屋根7階建て
- 建物面積
- 62.93㎡(19.04坪)バルコニー4.44㎡(1.34坪)
- 現況
- 空家
- 引渡日
- 即日
- 土地権利
- 所有権
- 都市計画
- 市街化区域
- 用途地域
- 近隣商業地域
- 取引態様
- 媒介
- 設備
-
- 都市ガス
- 公営水道
- 本下水
- 通学区域
- 共和小学校 約1000m
共和中学校 約600m
- 周辺施設
- ファミリーマート鹿沼台二丁目店 約150m
ローソン相模原鹿沼台一丁目店 約210m
セブンイレブン相模原淵野辺駅南口店 約300m
ヤオコー 相模原鹿沼台店 約350m
まいばすけっと 淵野辺駅南店 約350m
エスポット淵野辺店 約650m
ツルハドラッグ 淵野辺駅前店 約200m
スギ薬局 鹿沼台店 約280m
中央区役所 大野北まちづくりセンター 約200m
渕野辺総合病院 約600m
周辺地図
物件の詳細や見学(無料)などのお問い合わせは、
お問い合わせフォームまたはLINE、お電話にてご連絡ください。
- お電話での問合せ
-
042-707-1191
営業時間:平⽇ 10:00〜18:00
定休⽇:火曜日、⽔曜⽇、ゴールデンウィーク/夏季/年末年始
















