新築戸建
仲介手数料0円
★仲介手数料無料「0円」相模原市中央区陽光台四丁目 新築戸建 全1棟 BELS×ZEH水準省エネ住宅・断熱性能等級5・一次エネルギー等級6
- 価格
- 4,180万円
- 所在地
- 相模原市中央区陽光台4丁目
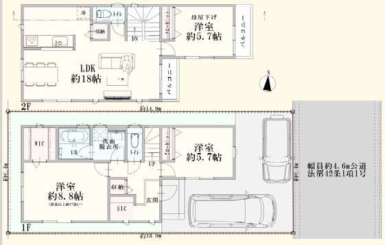
- 間取り
- 3LDK+WIC+SIC+パントリー
- 土地面積
- 95.64㎡(29.02坪)
- 建物面積
- 93.98㎡(28.42坪)
- 交通
- JR相模線「上溝」駅徒歩20分
間取り図
住宅設備
- 都市ガス
- 公営水道
- 本下水
- TVモニター付きインターホン
- シューズクローク
- ペアガラス
- システムキッチン
- ガスコンロ
- シャンプードレッサー
- 1F・2Fトイレウォシュレット
- 24時間換気システム
- フラット35S対象
- 建物10年保証付き
- パントリー
- ウォークインクローゼット
- 対面式キッチン
- 2面バルコニー
- カースペース2台
- BELS(建築物省エネルギー性能表示制度)
物件詳細情報
- 物件番号
- 202601nh-s000090
- 情報公開日
- 2026/01/18
- 価格
- 4,180万円
- 建築年月
- 2026年3月予定
- 所在地
- 相模原市中央区陽光台4丁目
- 交通
- JR相模線「上溝」駅徒歩20分
- 間取り
- 3LDK+WIC+SIC+パントリー
- 建物構造
- 木造2階建て
- 土地面積
- 95.64㎡(29.02坪)
- 建物面積
- 93.98㎡(28.42坪)
- 建ぺい率
- 50%
- 容積率
- 100%
- 現況
- 未完成
- 引渡日
- 相談
- 土地権利
- 所有権
- 都市計画
- 市街化区域
- 用途地域
- 第一種低層住居専用地域
- 建築確認番号
- 第2024SBC-計変確02371Y号
- 取引態様
- 媒介
- 設備
-
- 都市ガス
- 公営水道
- 本下水
- 接道状況
- 東 約4.6m公道
- 通学区域
- 陽光台小学校 約960m
緑が丘中学校 約1000m
- 周辺施設
- グルメシティ光が丘店 約300m
ドラッグストアマツモトキヨシ相模原陽光台店 約400m
ファミリーマート 相模原陽光台五丁目店 約350m
中央幼稚園 約500m
周辺地図
物件の詳細や見学(無料)などのお問い合わせは、
お問い合わせフォームまたはLINE、お電話にてご連絡ください。
- お電話での問合せ
-
042-707-1191
営業時間:平⽇ 10:00〜18:00
定休⽇:火曜日、⽔曜⽇、ゴールデンウィーク/夏季/年末年始

