中古戸建
仲介手数料0円
八王子市絹ケ丘1丁目 中古戸建 リフォーム済(システムキッチン・ユニットバス・洗面化粧台・トイレ新規交換他)北東・北西角地
- 価格
- 2,697万円
- 所在地
- 八王子市絹ケ丘1丁目
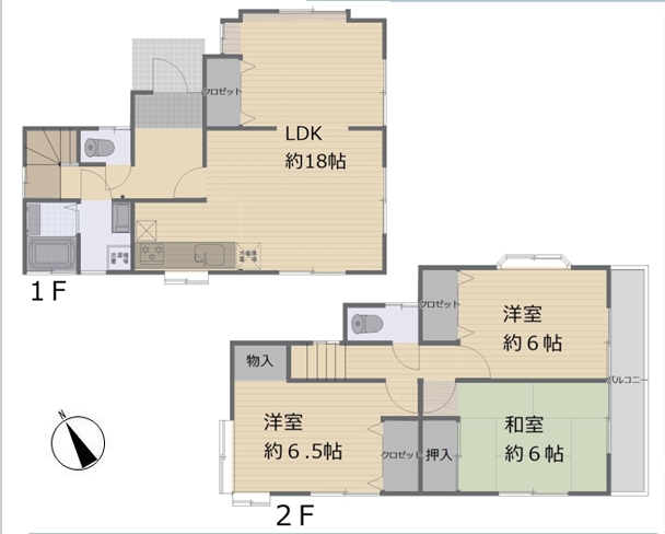
- 間取り
- 3LDK
- 土地面積
- 116.78㎡(35.33坪)
- 建物面積
- 89.43㎡(27.05坪)
- 交通
- 京王線「長沼」駅徒歩18分
間取り図
住宅設備
- 公営水道
- 本下水
- TVモニター付きインターホン
- システムキッチン
- 食洗機
- ガスコンロ
- シャンプードレッサー
- 浴室乾燥機
- 1F・2Fトイレウォシュレット
- 地下車庫
物件詳細情報
- 物件番号
- 202510uh-h000007
- 情報公開日
- 2025/10/23
- 価格
- 2,697万円
- 建築年月
- 1990年10月
- 所在地
- 八王子市絹ケ丘1丁目
- 交通
- 京王線「長沼」駅徒歩18分
- 間取り
- 3LDK
- 建物構造
- 木造2階建て
- 土地面積
- 116.78㎡(35.33坪)
- 建物面積
- 89.43㎡(27.05坪)
- 建ぺい率
- 40%
- 容積率
- 80%
- 現況
- 空家
- 引渡日
- 即日
- 土地権利
- 所有権
- 地目
- 宅地
- 都市計画
- 市街化区域
- 用途地域
- 第一種低層住居専用地域
- 取引態様
- 媒介
- 設備
-
- LPガス
- 公営水道
- 本下水
- 接道状況
- 北東 約4.5m公道 北西 約4.5m公道
- 通学区域
- 長沼小学校 約1510m
中山中学校 約1949m
- 周辺施設
- 京王ストア北野店 約1551m
マツモトキヨシ八王子北野台店 約1542m
セブンイレブン八王子絹ケ丘1丁目店 約598m
おさひめ幼稚園 約550m
周辺地図
物件の詳細や見学(無料)などのお問い合わせは、
お問い合わせフォームまたはLINE、お電話にてご連絡ください。
- お電話での問合せ
-
042-707-1191
営業時間:平⽇ 10:00〜18:00
定休⽇:火曜日、⽔曜⽇、ゴールデンウィーク/夏季/年末年始
















