新築戸建
仲介手数料0円
町田市忠生2丁目9期 新築戸建 全2棟 1号棟 ZEH水準省エネ住宅・BELS省エネ・制震ダンパー”MAMORY”・断熱性能等級5・一次エネルギー等級6
- 価格
- 3,480万円
- 所在地
- 町田市忠生2丁目
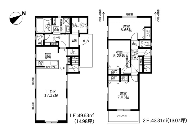
- 間取り
- 3LDK+SIC+パントリー+リネン庫+小屋裏収納
- 土地面積
- 96.25㎡(29.11坪)
- 建物面積
- 92.94㎡(28.05坪)
- 交通
- JR横浜線「町田」駅バス16分
「山崎小学校」停歩2分
間取り図
住宅設備
- 都市ガス
- 公営水道
- 本下水
- TVモニター付きインターホン
- シューズクローク
- ペアガラス
- システムキッチン
- カウンターキッチン
- 食洗機
- ガスコンロ
- シャンプードレッサー
- 浴室乾燥機
- 1F・2Fトイレウォシュレット
- 24時間換気システム
- カースペース
- フラット35S対象
- 建物10年保証付き
- パントリー
- 追い炊き機能
- TV付浴室
- 玄関カードキー
- 小屋裏収納
- リネン庫
- BELS(建築物省エネルギー性能表示制度)
物件詳細情報
- 物件番号
- 202511nh-m000032-01
- 情報公開日
- 2025/11/24
- 価格
- 3,480万円
- 建築年月
- 2026年4月下旬予定
- 所在地
- 町田市忠生2丁目
- 交通
- JR横浜線「町田」駅バス16分
「山崎小学校」停歩2分
- 間取り
- 3LDK+SIC+パントリー+リネン庫+小屋裏収納
- 建物構造
- 木造2階建て
- 土地面積
- 96.25㎡(29.11坪)
- 建物面積
- 92.94㎡(28.05坪)
- 建ぺい率
- 60%
- 容積率
- 200%
- 現況
- 未完成
- 引渡日
- 相談
- 土地権利
- 所有権
- 地目
- 宅地
- 都市計画
- 市街化区域
- 用途地域
- 第二種中高層住居専用地域
- 建築確認番号
- 第25UDI1K建て01606号
- 取引態様
- 媒介
- 設備
-
- 都市ガス
- 公営水道
- 本下水
- 接道状況
- 東 約6m公道
- 通学区域
- 山崎小学校 約170m
忠生中学校 約1200m
- 周辺施設
- スーパー三和 アメリア三和町田根岸店 約1900m
クリエイトS・D 町田山崎店 約500m
セブンイレブン 町田簗田寺南店 約400m
しぜんの国保育園 約450m
周辺地図
物件の詳細や見学(無料)などのお問い合わせは、
お問い合わせフォームまたはLINE、お電話にてご連絡ください。
- お電話での問合せ
-
042-707-1191
営業時間:平⽇ 10:00〜18:00
定休⽇:火曜日、⽔曜⽇、ゴールデンウィーク/夏季/年末年始



