新築戸建
仲介手数料0円
町田市旭町2丁目 新築戸建 全1棟 ZEH水準省エネ住宅・ペニンシュラキッチン・LDK約20帖・パントリー・ガス式乾燥機乾太君・ウォークインクローゼット×2・スタディーカウンター・アフターサービス保証付
- 価格
- 4,980万円
- 所在地
- 町田市旭町2丁目
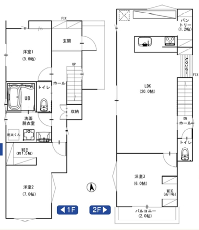
- 間取り
- 3LDK+WIC+スタディーカウンター+パントリー
- 土地面積
- 122.15㎡(36.95坪)
- 建物面積
- 96.67㎡(29.24坪)
- 交通
- 小田急線「町田」駅バス7分
「浄水場前」停歩6分

間取り図


住宅設備
- 都市ガス
- 公営水道
- 本下水
- TVモニター付きインターホン
- ペアガラス
- 食洗機
- ガスコンロ
- シャンプードレッサー
- 浴室乾燥機
- 1F・2Fトイレウォシュレット
- 24時間換気システム
- カースペース
- フラット35S対象
- 建物10年保証付き
- パントリー
- 追い炊き機能
- ウォークインクローゼット
- 宅配ボックス
- ペニンシュラキッチン
- スタディーカウンター
物件詳細情報
- 物件番号
- 202510nh-m000007
- 情報公開日
- 2025/10/16
- 価格
- 4,980万円
- 建築年月
- 2026年3月
- 所在地
- 町田市旭町2丁目
- 交通
- 小田急線「町田」駅バス7分
「浄水場前」停歩6分
- 間取り
- 3LDK+WIC+スタディーカウンター+パントリー
- 建物構造
- 木造2階建て
- 土地面積
- 122.15㎡(36.95坪)
- 建物面積
- 96.67㎡(29.24坪)
- 建ぺい率
- 40%
- 容積率
- 80%
- 現況
- 未完成
- 引渡日
- 相談
- 土地権利
- 所有権
- 都市計画
- 市街化区域
- 用途地域
- 第一種低層住居専用地域
- 建築確認番号
- 第2025SBC-確01181H
- 取引態様
- 媒介
- 設備
-
- 都市ガス
- 公営水道
- 本下水
- 接道状況
- 北 約4.7m公道 東 約6m公道
- 通学区域
- 第四小学校 約1118m
第三中学校 約853m
- 周辺施設
- オーケー町田森野店 約495m
ウェルパーク薬局町田旭町店 約445m
ローソン・スリーエフ新町田街道店 約446m
森野三丁目保育園 約714m
周辺地図
物件の詳細や見学(無料)などのお問い合わせは、
お問い合わせフォームまたはLINE、お電話にてご連絡ください。
- お電話での問合せ
-
042-707-1191
営業時間:平⽇ 10:00〜18:00
定休⽇:火曜日、⽔曜⽇、ゴールデンウィーク/夏季/年末年始